干油润滑部分
单线式集中润滑系统介绍
双线式集中润滑系统介绍
电动润滑泵
 
手(脚)动润滑泵
 
加油泵
 
气动泵
 
双线分配器
 
单线分配器
 
压力操纵、控制、换向阀及其附件
 
 稀油润滑部分
稀油集中润滑系统设计介绍
稀油润滑装置及稀油站
 
高(低)压稀油站
 
稀油润滑元件
 
 管件部分
 
 油气润滑部分
油气润滑系统设计介绍
油气润滑系统的形式
 
油气润滑系统产品
 
 电气控制部分
 
 
 
ZPU型电动润滑泵(40MPa)
一、使用条件
ZPU型电动润滑泵适用于润滑频率高,配管长度大,润滑点密集,公称压力为40MPa的单、双线干油集中润滑系统中,作为供给润滑剂的输送装置。还可配备移动小车、高压胶管、给脂油枪和电缆组成移动式电动润滑泵装置,用于润滑频率低,润滑点少、给油量大且不便于采用集中润滑的单机设备上进行移动给油润滑。
该泵是一种由减速电机驱动油泵装置,排出润滑剂的单出口电动润滑泵。有三种排量规格,可根据不同需要方便地组成投资最低的集中润滑系统;由它组成的干油集中润滑具有输送距离远,供油管径小的特点。

二、技术参数

型 号
公称压力MPa
额定给油量mL/min
贮油器容积L
减速电机
重 量kg
功率kW
电压
ZPU-08G
40
133
40
0.55
~380
76
ZPU-14G
233
60
0.75
84
ZPU-24G
400
100
1.5
92

使用介质为锥入度不低于265(25℃,150g)1/10mm 的润滑脂(NLGI0#-2#)和粘度等级大于N68 的润滑油。

   
三、型号说明
 
      
   
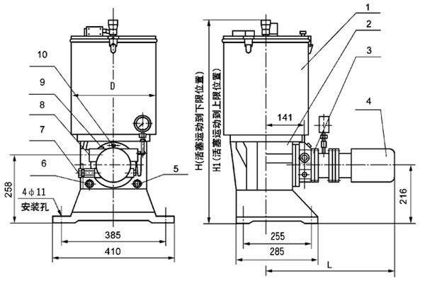
四、外形尺寸

 
1、贮油筒;2、泵座;3、带连结法兰的柱塞泵装置;4、减速电机5、加油口G3/4;
6、回油口G3/4;7、调压安全阀;8、出油口G3/4;9、过滤器;10、单向阀
 
规格
40L
60L
100L
0.55kW 60rpm
0.75kW 100rpm
1.5kW 180rpm
D
Φ325
Φ325
Φ500
 
H
822
1077
1027
H1
1112
1527
1387
L
510
530
575
 

五、使用说明
1、应安装在环境温度合适,灰尘少,便于调整、检验、维修、拆洗及补脂方便的地方。
2、应尽可能布置在系统的中心位置,以缩短系统配管长度,保持最低压降,使泵能产生足以克服润滑点背压的压力。
3、首次使用前应先加入一定量的润滑油,让泵运转几分钟后再从补脂口以封闭方式用电动加油泵加入润滑脂。
4、电机减速机初用后三个月必须从排气塞孔处补充适量的3# 二硫化铝润滑剂,以后每隔四个月补充一次。
5、该泵为室内安装型,在室外或环境恶劣的场合使用时,必须采取防护措施。

六、订货说明
1、订购带小车的电动润滑泵移动装置时,必须在合同中注明所需胶管长度及电缆长度。
2、电动润滑泵为短时间间隔工作制,用户如需长时间连续工作请在合同中注明。

 
公司名称: 启东天驰润滑液压设备有限公司 公司地址: 江苏省启东市纬一路32号 润滑设备
联系电话: 0513-83352118 公司传真: 0513-83200438 E-mail: webmaster@qdtcrh.com